SOG(架空線用高圧気中開閉器)

無方向性SOG制御装置(標準型/VT内蔵型/LA内蔵型)

無方向性SOG制御装置(標準型/VT内蔵型/LA内蔵型)
無方向性SOG制御装置(標準型/VT内蔵型/LA内蔵型)

製品の主な特徴

  • 【樹脂形】屋外樹脂箱入り。樹脂箱はアース線設置不要。
  • 【ステンレス形】屋外用ステンレス箱入り。標準ハンドルキーNo.200鍵付。

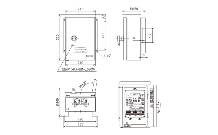
外形図

GCL-R2-J(樹脂箱)の外形図
GCL-R2-J(樹脂箱)の外形図
GCL-R2-S(ステンレス箱)の外形図
GCL-R2-S(ステンレス箱)の外形図

仕様

形式 GCL-R2-J※1
【GCL-R2-JV】
GCL-R2-S※1
【GCL-R2-SV】
GCL-R2-M
種類 屋外用 屋内用
樹脂箱入り ステンレス箱入
ハンドルキー付
表面形
定格制御電圧[V] AC 100 / 110
定格周波数[Hz] 50 / 60
制御電圧変動範囲[V] AC 85 ~ 120
動作電流整定値[A] 0.2 - 0.3 - 0.4 - 0.6(4タップ)
地絡トリップ動作時間※3 動作電流整定値×80(%)···不動作
     〃   ×130(%)···0.1~0.3秒
     〃   ×400(%)···0.1~0.2秒
消費電力(AC 100V時)[VA] 10
警報接点容量 AC 250V 2A
DC 100V 0.2A
閉路時間 約100ms
総質量[kg] 2.0 4.6 0.6
LA内蔵形用付属品 ※2
準拠規格 JIS C 4601 高圧受電用地絡継電装置
  • (注)※1 形式の【】内はVT・LAの形式となります。
  •    ※2 LA内蔵形用付属品は「LA内蔵形」対象の付属となります。
  •    ※3 動作時間整定値は制御装置単体の数値です。開閉器と本体との組合せ動作時間についてはこちらを参照ください。

ダウンロード

製品カタログ

取扱説明書

図面PDF

page top

愛知県犬山市字上小針1番地

エナジーサポート株式会社は、NGKグループの一員です。